0

NEUF : Appartement T5 110 m² DUPLEX - 74600 Annecy

Annecy (74600)
Réf : 260404c

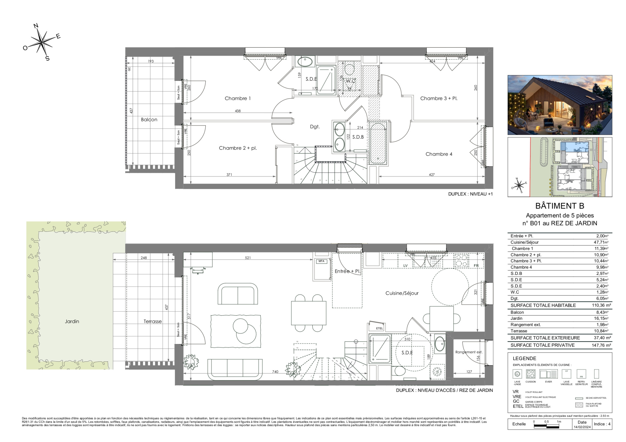
En nouveauté chez Harmony Immo, ce superbe appartement T5 DUPLEX en rez de jardin construit au sein d’un programme neuf “Le jardin des sens” et niché sur la commune de Seynod, offre une belle surface habitable de 110 m2 Carrez.

Son emplacement idéal le situe proche des commodités, à deux pas des écoles et arrêts de bus, et vous ne serez qu’à quelques minutes du lac ainsi que du centre-ville d’Annecy.

Ce bien lumineux et parfaitement agencé se compose d’une pièce de vie spacieuse de 47 m2 avec cuisine ouverte sur le séjour, idéale pour partager des moments conviviaux en famille ou entre amis.

L’espace nuit comprend 4 chambres confortables, dont une disposant d’une salle d'eau.

À l'extérieur, vous profiterez d’une agréable terrasse de 26 m². En annexes, vous retrouverez un garage et une cave.

Ce bien rare allie confort moderne, fonctionnalité et qualité de vie, dans un environnement agréable et recherché. La livraison prévisionnelle de l'appartement est prévue pour le 3ème trimestre 2026.

L’appartement vous est proposé au prix de 555 000€ honoraires inclus à la charge du promoteur. FRAIS DE NOTAIRE REDUITS

Bien non soumis au DPE.

Pour obtenir plus d'informations, veuillez contacter votre agent commercial Matteo Miralles au 06.50.35.27.51, enregistré au numéro RSAC : 919148163.

Les informations sur les risques auxquels ce bien est exposé sont à retrouver sur le site de Géorisques : www.georisques.gouv.fr

Prix du bien 555 000 €
Pièce(s) 5
Chambre(s) 4

Caractéristiques du bien

Caractéristiques Valeurs
Code postal 74600
Surface habitable (m²) 110 m²
Surface loi Carrez (m²) 110 m²
Nombre de chambre(s) 4
Nombre de pièces 5
Nombre de niveaux 2
Ascenseur NON
Nb de salle de bains 1
Nb de salle d'eau 2
Mode de chauffage Autre
Type de chauffage Autre
Format de chauffage TRAD_FORMAT_CHAUFF_URBAIN
Balcon NON
Terrasse OUI
Nombre de garage 1
Cave OUI
Exposition Est-Ouest

Infos financières

Caractéristiques Valeurs
Prix de vente 555 000 €
Les honoraires d'agence seront intégralement à la charge du vendeur  

Bilans énergétiques

DPE GES
Ce bien vous intéresse ?
Fieldset par défaut
Fieldset par défaut
Validation

* Champs obligatoires

Contacter l'agence
Validation
Les informations recueillies sur ce formulaire sont enregistrées dans un fichier informatisé par La Boite Immo agissant comme Sous-traitant du traitement pour la gestion de la clientèle/prospects de l'Agence / du Réseau qui reste Responsable du Traitement de vos Données personnelles. La base légale du traitement repose sur l'intérêt légitime de l'Agence / du Réseau. Elles sont conservées jusqu'à demande de suppression et sont destinées à l'Agence / au Réseau. Conformément à la loi « informatique et libertés », vous disposez des droits d’accès, de rectification, d’effacement, d’opposition, de limitation et de portabilité de vos données. Vous pouvez retirer votre consentement à tout moment en contactant directement l’Agence / Le Réseau. Consultez le site https://cnil.fr/fr pour plus d’informations sur vos droits. Si vous estimez, après avoir contacté l'Agence / le Réseau, que vos droits « Informatique et Libertés » ne sont pas respectés, vous pouvez adresser une réclamation à la CNIL. Nous vous informons de l’existence de la liste d'opposition au démarchage téléphonique « Bloctel », sur laquelle vous pouvez vous inscrire ici : https://www.bloctel.gouv.fr Dans le cadre de la protection des Données personnelles, nous vous invitons à ne pas inscrire de Données sensibles dans le champ de saisie libre.
Ce site est protégé par reCAPTCHA, les Politiques de Confidentialité et les Conditions d'Utilisation de Google s'appliquent.