
Programme neuf – Maisons familiales à Seynod
Annecy (74600)À partir de 525 000 € tout compris (maison + cuisine + frais de notaire)
Découvrez ce nouveau programme immobilier à Seynod, niché dans un quartier calme et très recherché, idéal pour les familles à la recherche d’un cadre de vie serein entre nature et commodités.
Ces 8 maisons neuves, au sein d’un programme intimiste, offre un environnement paisible et verdoyant, tout en restant à proximité immédiate des écoles, commerces, transports et accès autoroutiers.
Chaque maison bénéficie d’un terrain privatif et idéalement exposé, invitant à la détente, avec la possibilité d’y aménager une piscine pour sublimer votre extérieur.
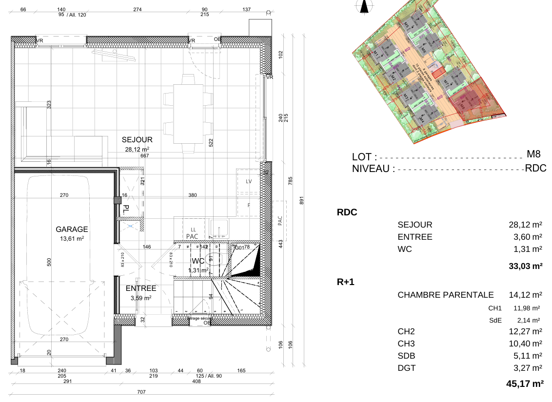
La pièce de vie traversante, ouverte sur la terrasse et le jardin privatif, devient le cœur de la maison.
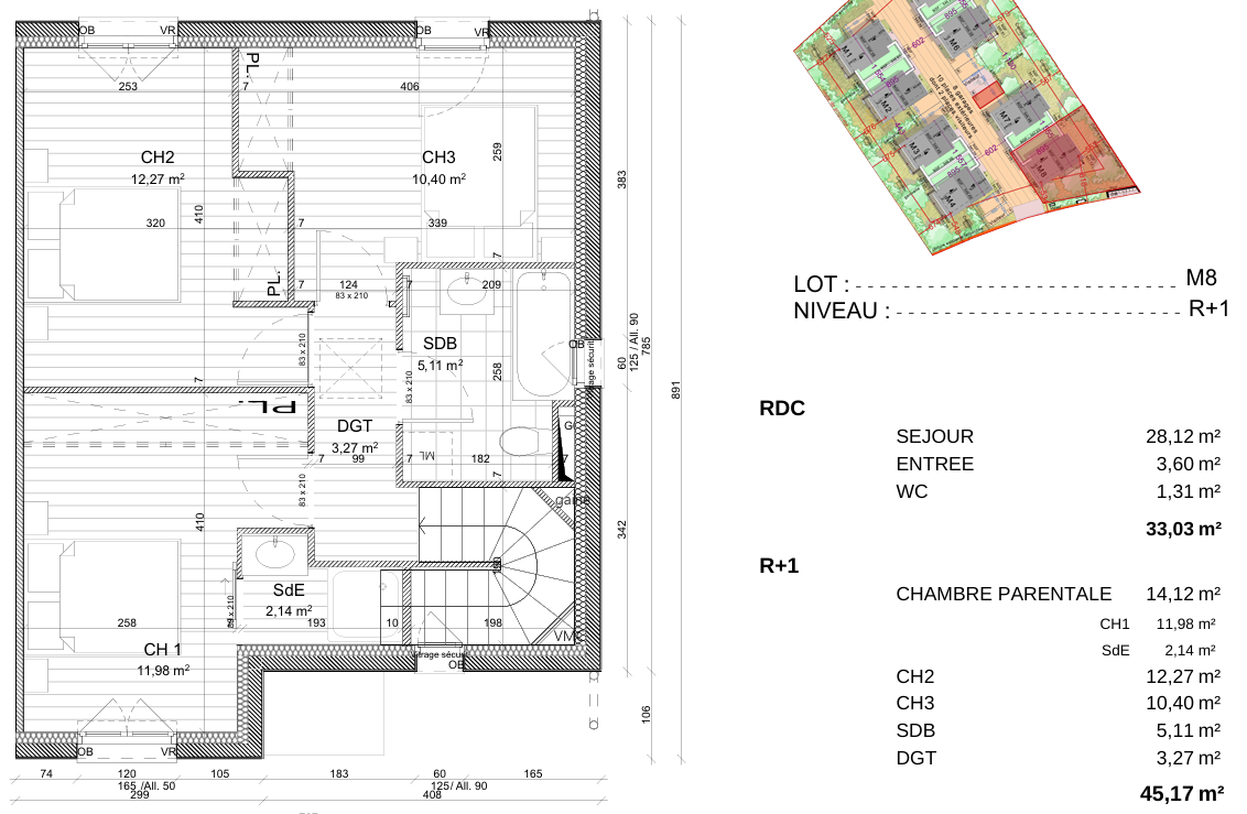
L’espace nuit se compose de trois chambres, dont une suite parentale élégante, dotée de sa salle d’eau privative.
Une seconde salle de bains, deux WC, un garage et une place de stationnement complètent harmonieusement l’ensemble.
Conformes à la réglementation RE 2020, ces maisons allient performance énergétique et confort thermique grâce à un système de chauffage par pompe à chaleur.
L’ensemble des prestations — matériaux, finitions, agencement — a été soigneusement sélectionné pour garantir une qualité durable et un bien-être au quotidien.
L’achat s’effectue dans le cadre d’une VEFA, avec frais de notaire réduits.
DPE vierge
Pour toute demande, contactez votre agent commercial Marie au 06.98.30.57.69 (RSAC n°931 907 083 EI).
Plus d'informations sur les risques disponibles sur le site Georisques : http://georisques.gouv.fr
Caractéristiques du bien
Infos financières
La base légale du traitement repose sur l’intérêt légitime de l'Agence / du Réseau.
Elles sont conservées jusqu'à demande de suppression et sont destinées à l'Agence / au Réseau.
Conformément à la loi « informatique et libertés », vous pouvez exercer votre droit d'accès aux données vous concernant et les faire rectifier en contactant l'Agence / le Réseau.
Si vous estimez, après avoir contacté l'Agence / le Réseau, que vos droits « Informatique et Libertés » ne sont pas respectés, vous pouvez adresser une réclamation à la CNIL.
Nous vous informons de l’existence de la liste d'opposition au démarchage téléphonique « Bloctel », sur laquelle vous pouvez vous inscrire ici : https://www.bloctel.gouv.fr
Dans le cadre de la protection des Données personnelles, nous vous invitons à ne pas inscrire de Données sensibles dans le champ de saisie libre
Ce site est protégé par reCAPTCHA, les Politiques de Confidentialité et les Conditions d'Utilisation de Google s'appliquent.
Détails des diagnostics énergtiques
