0
Coup de coeur

Programme neuf – Maisons familiales à Seynod

Annecy (74600)
Réf : 251004B

À partir de 525 000 € tout compris (maison + cuisine + frais de notaire)

Découvrez ce nouveau programme immobilier à Seynod, niché dans un quartier calme et très recherché, idéal pour les familles à la recherche d’un cadre de vie serein entre nature et commodités.

Ces 8 maisons neuves, au sein d’un programme intimiste, offre un environnement paisible et verdoyant, tout en restant à proximité immédiate des écoles, commerces, transports et accès autoroutiers.

Chaque maison bénéficie d’un terrain privatif et idéalement exposé, invitant à la détente, avec la possibilité d’y aménager une piscine pour sublimer votre extérieur.

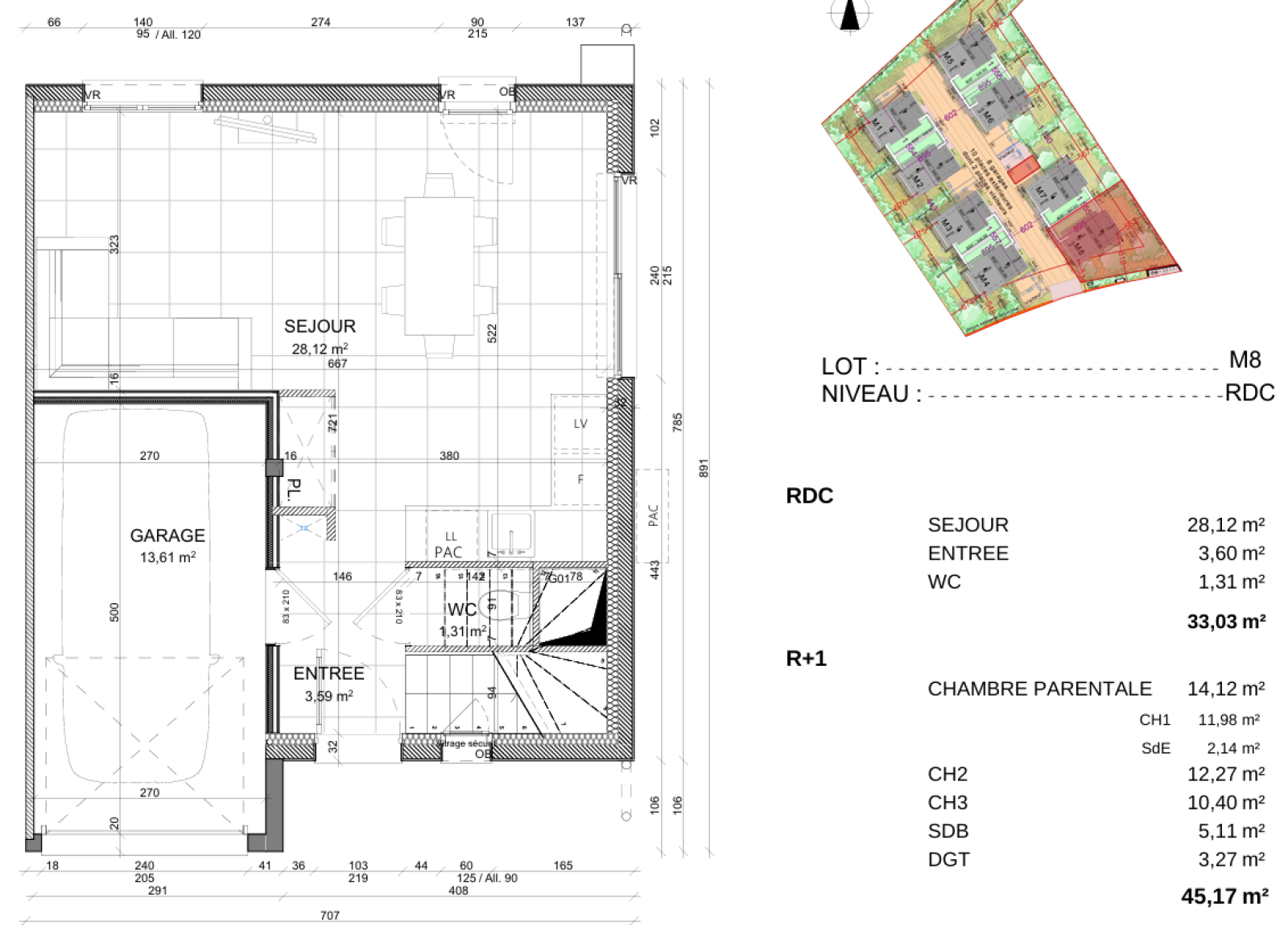
La pièce de vie traversante, ouverte sur la terrasse et le jardin privatif, devient le cœur de la maison.
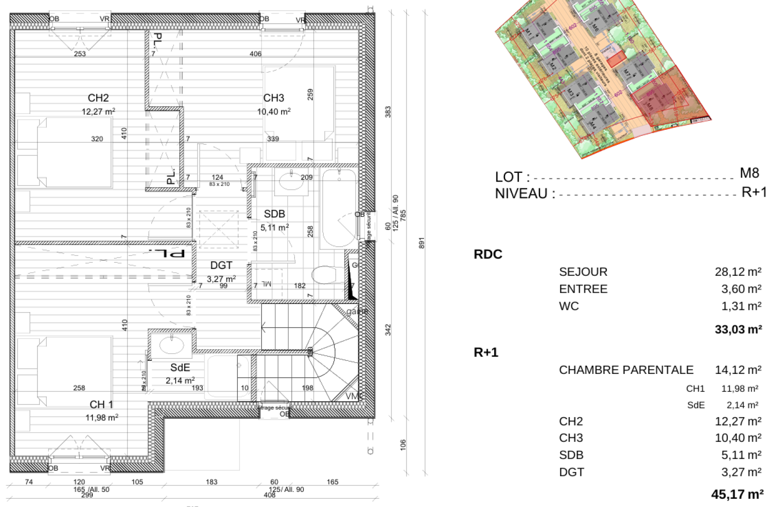
L’espace nuit se compose de trois chambres, dont une suite parentale élégante, dotée de sa salle d’eau privative.
Une seconde salle de bains, deux WC, un garage et une place de stationnement complètent harmonieusement l’ensemble.

Conformes à la réglementation RE 2020, ces maisons allient performance énergétique et confort thermique grâce à un système de chauffage par pompe à chaleur.
L’ensemble des prestations — matériaux, finitions, agencement — a été soigneusement sélectionné pour garantir une qualité durable et un bien-être au quotidien.

L’achat s’effectue dans le cadre d’une VEFA, avec frais de notaire réduits.

DPE vierge

Pour toute demande, contactez votre agent commercial Marie au 06.98.30.57.69 (RSAC n°931 907 083 EI).

Plus d'informations sur les risques disponibles sur le site Georisques : http://georisques.gouv.fr

Prix du bien 502 460 €
Pièce(s) 4
Chambre(s) 3

Caractéristiques du bien

Caractéristiques Valeurs
Code postal 74600
Surface habitable (m²) 79 m²
Surface loi Carrez (m²) 79 m²
Nombre de chambre(s) 3
Nombre de pièces 4
Nombre de niveaux 1
Vue sans vis à vis
Nb de salle de bains 2
Cuisine Sans
Mode de chauffage Pompe à chaleur
Type de chauffage TRAD_TYPE_CHAUFF_AIR_EAU
Format de chauffage Individuel
Terrasse OUI
Murs mitoyens 1
Nombre de garage 1
Nombre de parking 1
Exposition Sud-Est
Année de construction 2026
Terrain piscinable OUI
Terrain arboré OUI

Infos financières

Caractéristiques Valeurs
Prix de vente honoraires TTC inclus 502 460 €

Bilans énergétiques

DPE GES
Ce bien vous intéresse ?
Fieldset par défaut
Fieldset par défaut
Validation

* Champs obligatoires

Contacter l'agence
Validation
Les informations recueillies sur ce formulaire sont enregistrées dans un fichier informatisé par La Boite Immo agissant comme Sous-traitant du traitement pour la gestion de la clientèle/prospects de l'Agence / du Réseau qui reste Responsable du Traitement de vos Données personnelles.
La base légale du traitement repose sur l’intérêt légitime de l'Agence / du Réseau.
Elles sont conservées jusqu'à demande de suppression et sont destinées à l'Agence / au Réseau.
Conformément à la loi « informatique et libertés », vous pouvez exercer votre droit d'accès aux données vous concernant et les faire rectifier en contactant l'Agence / le Réseau.
Si vous estimez, après avoir contacté l'Agence / le Réseau, que vos droits « Informatique et Libertés » ne sont pas respectés, vous pouvez adresser une réclamation à la CNIL.
Nous vous informons de l’existence de la liste d'opposition au démarchage téléphonique « Bloctel », sur laquelle vous pouvez vous inscrire ici : https://www.bloctel.gouv.fr 
Dans le cadre de la protection des Données personnelles, nous vous invitons à ne pas inscrire de Données sensibles dans le champ de saisie libre
Ce site est protégé par reCAPTCHA, les Politiques de Confidentialité et les Conditions d'Utilisation de Google s'appliquent.